Compare Listings

22 Bridge House

Bridge Wharf, Chertsey, Surrey. KT16 8JB
£385,000

Video

Description

22 Bridge House, Bridge Wharf, Chertsey, Surrey. KT16 8JB

READY TO SELL!  With ground rent capped and lease extension with deed of variation this unique penthouse apartment with a large terrace boasting views over the Thames and surrounding countryside on the curve of the river is available to complete before Christmas 2025!

Served by gas central heating and with accommodation arranged around a spacious hallway the apartment has allocated parking. In a delightful area for Riverside and country walks, just a couple of minutes away from charming Thameside pubs and restaurants.

The Accommodation Comprises:

Sealed unit double glazed door with security entry’phone to:

Communal Entrance Hall:

Fully carpeted and well maintained hallways and stairways with elevator to all floors including third floor landing. Hallway with access to apartments 21 and 22 with sealed unit double glazed window to side and wooden front door to:

Entrance Hall:

With sealed unit double glazed porthole window to side and radiator. Power points and built-in cloaks storage cupboard. Further cupboard housing hot water cylinder and further storage space. Wall mounted entry’phone handset. Wooden doors to all rooms.

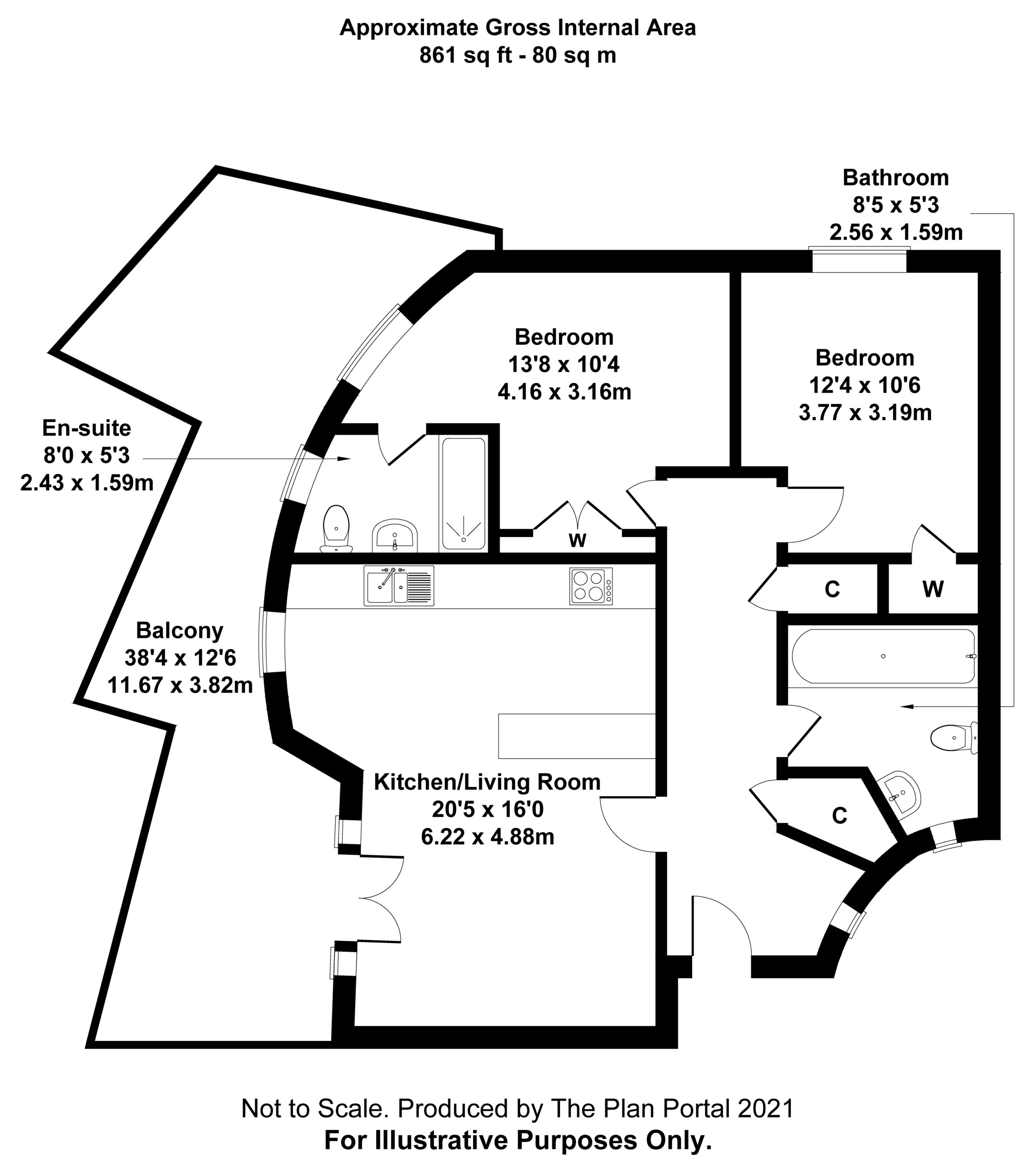
Open Plan Living Space: 6.22m x 4.88m / 20ft 5 x 16ft

Bright living area with sealed unit double glazed casement doors and picture windows to terrace overlooking Thames. Feature panelled wall with TV point.  Open plan to kitchen area with peninsular bar creating seating and workspace with storage below. Range of base and eye level units with granite work surface area with stainless steel sink inset with mixer tap, fitted electric double oven and gas hob with extractor hood over. Fitted concealed fridge and freezer, automatic washing machine and dishwasher.

Bathroom:

Modern white suite comprising panel enclosed bath with mixer tap and shower attachment, low level WC and vanity storage unit with wash hand basin and mixer tap over. Part tiled walls with sealed unit double glazed porthole window to side. Shaver point.

Bedroom 1: 4.16m x 3.16m / 13ft 7 x 10ft 4

Double bedroom with picture window to terrace. Built in wardrobes with hanging and shelving space and wooden doors. Wooden door to:

En-Suite Shower Room:

Modern white suite comprising fully tiled double shower cubicle with glass screen, low level WC and vanity storage unit with wash hand basin and mixer tap over. Part tiled walls with sealed unit double glazed window to front and display/storage ledge.

Bedroom 2:3.77m x 3.19m / 12ft 4 x 10ft 5

Rear aspect double bedroom with built in wardrobe with hanging and shelving space and wooden door.

Outside:

Terrace:

Approx. 11.9m / 39ft secluded terrace offering two separate seating areas with views over the Thames and surrounding countryside.

Parking:

Allocated parking for one car, additional visitors parking at various parts of the development.

Communal Grounds:

Well maintained communal gardens and borders with delightful riverside walks leading to further Thameside walks and Chertsey Bridge.

Tenure:

Leasehold, 134 year lease remaining.

Ground Rent & Maintenance Charge:

Ground rent fixed at £250 per annum for duration of lease.

Maintenance charge approx. £1800 per annum. Further details can be provided on request.

Detail

  • Icon
    2
    Bedrooms
  • Icon
    2
    Bathrooms
  • Icon
    Property Size
    861 Sq Ft
  • Icon
    Year Built
    2003

Updated on October 18, 2025 at 10:32 am

Address

  • City: Chertsey
  • State/county: Surrey
  • Neighborhood: Surrey
  • Country: United Kingdom

Floor plans

  • 22 Bridge House
img

22 Bridge House

Price: £385,000

  • Icon
    Rooms:
    2
  • Icon
    Baths:
    2
  • Icon
    Size:
    861

Contact Agent

James Ramsey
  • James Ramsey
View listings

Enquire about this property